路灯杆开卷斜剪生产线
当前位置:首页
>
产品展示
路灯杆开卷生产线
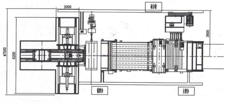
路灯杆开卷生产线,型号:CTLA6X1600
(全自动型,二重式校平)
自动型:板料长度数控,切边和斜剪,堆垛带自动装置
应用:用于路灯杆材料的开卷,校平,剪切,切边和梯形板斜剪,以获得一头大以头小的路灯杆板材
技术参数和生产线组成
1.材料厚度:2~6mm, Q235
2.材料宽度:800-1600mm
3.卷重:15ton(可以按照客户要求)
4.钢卷内径:Φ500mm-Φ750mm
5.校平速度:5- 15m/min
6.辊子数量:13
7.辊子直径:130mm
8.长度范围:2000~12000mm
9.长度公差:±15mm
10.主电机功率: 37kw
11.切边和斜剪速度:15 m/min.
12.切边和斜剪机电机功率:5.5kw
13.小车移动速度:12m/min. 变频可调,adjustable
14.滚剪刀片材质:H13
15.刀片直径:280mm
16.斜剪机夹送辊直径:280mm
17.双剪内宽:1600mm
18.单剪内宽:1800mm
19.机器占地宽度:7000mm
设备清单
1.液压上料小车,上下液压 电动水平移动
2.液压对顶式开卷机。
包含左右两个
液压顶紧,由油缸驱动对式开卷机架,可顶紧卷料。
结构:机体,滑动机座,主轴,锥度装料盘,移动油缸。
主要功能:固定钢卷实现被动开卷。装有一套手动刹车装置,根据带卷涨力调节。横向行程由双面移动油缸完成。根据带卷的宽度调节对中心两油缸可同时左右偏移。
3.剥头引料装置
用于对卷料的毛料铲头,将板料引入牵引。液压提升、液压压紧,防止卷料松散,并配合剥头引料装置将板料引入牵引辊。动力牵引通过两夹辊牵引板料,上夹辊液压升降。
结构:引料架、引料辊、引料电机链轮、链条、升降油缸、铲头托板、伸缩面板、驱动油缸。
主要功能:辅助开卷,引料辊由电机驱动。帮助开卷机将板头引向铲板。然后引向送料夹辊,铲板可上下升降和前后伸缩,正常运行时,此装置全部退出工作位置。
夹送结构:机座、牌坊、滑块送料轴、传动电机、压下油缸组成。
主要功能:将板料送入后部设备,传动采用电机摆线针轮减速机加离合器。完成夹送待板料进入校平主机后,离合器脱开,上辊液压抬起,下辊由板料带动被动旋转。
4.中间滚道4米
5.导向装置
6.校平机:(二重式)
由机架部分、工作辊部分、升降部分和主传动部分组成。
机架部分,采用铁板焊接结构,工作辊部分、升降部分与机架部分有机结合在一起。
工作辊部分由11个校平辊和2各夹送辊组成。
校平辊采用辊列不平行式,上排辊能够升降运动且能够相对于下辊倾斜,分别调整入口、出口的开口大小,达到理想的校平效果。校平辊材质采用40Cr,表面淬硬。
升降部分的作用主要是提升上排校平辊,调整校平辊之间的压下量。本机电机通过减速机、蜗轮蜗杆传动丝杠丝母达到升降上排辊的目的。上排工作辊安装在活动梁上,活动梁由四个丝杆进行提升。由两端升降电机实现入、出口不同开口尺寸的调整。
主传动部分由变频交流电机通过减速机传动校平辊。
通过测量辊旋转编码器对送料定尺剪切的尺寸进行检测并通过电气系统进行定尺控制。
7.可旋转剪板机
剪板机是生产线中对校平后的钢板进行横剪的设备。本生产线中设备QC12Y-6*2000液压摆式剪板机。
剪板机,可以相对中心线旋转3度,来适合路灯杆板料的剪切。 剪下的板料成平行四边形,这样的板料减少了材料的浪费和,适合下一道路灯杆工序。
机器机构及特点说明:钢板焊接,强度高,刚度好,液压上刀架摆动式,氮气回程缸平衡上刀架自重与回程,运动平稳快速。下刀片带前后微调机构,刀口间隙均匀度好,剪切直线度精度高。刀口间隙调整方便快捷,左右两边同步,刻度值指示。液压压料,稳定平缓,压脚垫采用聚胺脂材质,不伤害工件表面。
8.满足路灯杆长度的趟排,导向小车,自动装置
导向小车在双剪机的前面,含有定位挡块,保证下料的一致性。同时调节定位挡块的位置,可以获得,不同宽度的钢板,以满足不同尺寸的路灯杆。导向小车带电机驱动,根据需要生产的路灯杆的长度, 可以自动移动到,所需要的位置,夹持钢板,以控制板料滚剪的直线度。
每一个趟排辊子带有离合器和动力,电机驱动辊子时,带动钢板向前移动,到斜剪机前固定位置时自动停止。大大降低操作人员的劳动强度。
小车和双剪机均带有气动定位装置,保证下料的一致性和降低人工。
9.板料升起装置
这个装置包含两个气缸,根据板料的长度,可以被设置到不同的位置。
当板料移动到斜剪机前面,停下来后,这个装置将板料升起,便于板料被夹紧在小车上,向前移动。
10.双剪机,采用滚剪的原理,去除热轧钢板的不整齐的废边,获得路灯杆板材斜剪前,准确的板宽度。
采用上下2辊,4把刀片的结构,上下2辊为全螺纹,便于调节滚剪位置。
双剪机采用4KW电机驱动,通过减速机将动力传递给滚剪刀片。
带电动机,齿轮箱。
11.满足路灯杆长度的趟排,导向小车,自动装置
导向小车在斜剪机的前面,含有定位挡块,保证下料的一致性。同时调节定位挡块的位置,可以获得,不同斜度的钢板,以满足不同锥度比的路灯杆。导向小车带电机驱动,根据需要生产的路灯杆的长度, 可以自动移动到,所需要的位置,夹持钢板,以控制板料滚剪的直线度。
每一个趟排辊子带有离合器和动力,电机驱动辊子时,带动钢板向前移动,到斜剪机前固定位置时自动停止。大大降低操作人员的劳动强度。
小车和双剪机均带有气动定位装置,保证下料的一致性和降低人工。
12.板料升起装置
这个装置包含两个气缸,根据板料的长度,可以被设置到不同的位置。
当板料移动到斜剪机前面,停下来后,这个装置将板料升起,便于板料被夹紧在小车上,向前移动。
13.斜剪机,采用滚剪的原理,将双剪后的钢板斜剪,获得路灯杆板材的折弯前需要的斜度。
采用上下2斜剪辊和动力夹送辊,2把刀片的结构,上下2辊为螺纹,便于调节滚剪位置。
带电动机,齿轮箱。
14.出料趟排
适合客户所需长度的路灯杆板料,趟排由球支承,和支撑架所组成。
15.梯形板自动卸料和堆垛
在斜剪机之后,有两个气动夹紧送料辊,其作用是将梯形板送离斜剪机,下辊带气动离合器,带电机驱动。当板料停止移动时,上辊会升起给出卸料空间。
在出料趟排的下面有12组气动卸料装置,它们从台子的中间升起,形成两个斜面,使得两块梯形板分别滑向两边的堆垛架子。完成自动卸料和堆垛。
所有动作全部由PLC 程序来控制,自动完成。
16.电气控制系统
电气控制系统组成:电源控制操作台,可编程控制系统。包含变频器,用来控制小车的移动速度。
17 液压系统有液压站和相应的阀、管路、油缸组成
18.气动系统
用于小车,趟排的离合器,板料升起和落料系统。


四重式校平机







苏ICP备17067978号-1