路灯杆开卷斜剪生产线
当前位置:首页
>
产品展示
路灯杆开卷生产线
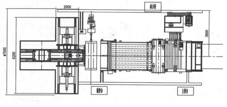
路灯杆开卷生产线,型号:CTLA6X1600
(全自动型,四重式校平)
自动型:板料长度数控,切边和斜剪,堆垛带自动装置
应用:用于路灯杆材料的开卷,校平,剪切,切边和梯形板斜剪,以获得一头大以头小的路灯杆板材
技术参数和生产线组成
1.材料厚度:2~6mm, Q235
2.材料宽度:800-1600mm
3.卷重:15ton
4.钢卷内径:Φ500mm-Φ750mm
5.校平速度:5- 15m/min
6.辊子数量:13
7.辊子直径:130mm
8.长度范围:2000~12000mm
9.长度公差:±15mm
10.主电机功率,总功率:37kw
11.切边和斜剪速度:15 m/min
12.切边和斜剪机电机功率:5.5kw
13.小车移动速度:15m/min. 变频可调,adjustable
14.滚剪刀片材质:H13
15.刀片直径:280mm
16.斜剪机夹送辊直径:280mm
17.双剪内宽:1600mm
18.单剪内宽:1800mm
19.机器占地宽度:7000mm
设备清单
1.液压上料小车,上下液压 电动水平移动
2.液压对顶式开卷机。
包含左右两个
液压顶紧,由油缸驱动对式开卷机架,可顶紧卷料。
结构:机体,滑动机座,主轴,锥度装料盘,移动油缸。
主要功能:固定钢卷实现被动开卷。装有一套手动刹车装置,根据带卷涨力调节。横向行程由双面移动油缸完成。根据带卷的宽度调节对中心两油缸可同时左右偏移。
3.剥头引料装置
用于对卷料的毛料铲头,将板料引入牵引。液压提升、液压压紧,防止卷料松散,并配合剥头引料装置将板料引入牵引辊。动力牵引通过两夹辊牵引板料,上夹辊液压升降。
结构:引料架、引料辊、引料电机链轮、链条、升降油缸、铲头托板、伸缩面板、驱动油缸。
主要功能:辅助开卷,引料辊由电机驱动。帮助开卷机将板头引向铲板。然后引向送料夹辊,铲板可上下升降和前后伸缩,正常运行时,此装置全部退出工作位置。
夹送结构:机座、牌坊、滑块送料轴、传动电机、压下油缸组成。
主要功能:将板料送入后部设备,传动采用电机摆线针轮减速机加离合器。完成夹送待板料进入校平主机后,离合器脱开,上辊液压抬起,下辊由板料带动被动旋转。
4.中间滚道4米
5.导向装置
6.四重式校平机
7.可旋转剪板机
剪板机是生产线中对校平后的钢板进行横剪的设备。本生产线中设备QC12Y-6*2000液压摆式剪板机。
剪板机,可以相对中心线旋转3度,来适合路灯杆板料的剪切。 剪下的板料成平行四边形,这样的板料减少了材料的浪费和,适合下一道路灯杆工序。
机器机构及特点说明:钢板焊接,强度高,刚度好,液压上刀架摆动式,氮气回程缸平衡上刀架自重与回程,运动平稳快速。下刀片带前后微调机构,刀口间隙均匀度好,剪切直线度精度高。刀口间隙调整方便快捷,左右两边同步,刻度值指示。液压压料,稳定平缓,压脚垫采用聚胺脂材质,不伤害工件表面。
8.满足路灯杆长度的趟排,导向小车,自动装置
导向小车在双剪机的前面,含有定位挡块,保证下料的一致性。同时调节定位挡块的位置,可以获得,不同宽度的钢板,以满足不同尺寸的路灯杆。导向小车带电机驱动,根据需要生产的路灯杆的长度, 可以自动移动到,所需要的位置,夹持钢板,以控制板料滚剪的直线度。
每一个趟排辊子带有离合器和动力,电机驱动辊子时,带动钢板向前移动,到斜剪机前固定位置时自动停止。大大降低操作人员的劳动强度。
小车和双剪机均带有气动定位装置,保证下料的一致性和降低人工。
9.板料升起装置
这个装置包含两个气缸,根据板料的长度,可以被设置到不同的位置。
当板料移动到斜剪机前面,停下来后,这个装置将板料升起,便于板料被夹紧在小车上,向前移动。
10.双剪机,采用滚剪的原理,去除热轧钢板的不整齐的废边,获得路灯杆板材斜剪前,准确的板宽度。
采用上下2辊,4把刀片的结构,上下2辊为全螺纹,便于调节滚剪位置。
双剪机采用4KW电机驱动,通过减速机将动力传递给滚剪刀片。
带电动机,齿轮箱。
11.满足路灯杆长度的趟排,导向小车,自动装置
导向小车在斜剪机的前面,含有定位挡块,保证下料的一致性。同时调节定位挡块的位置,可以获得,不同斜度的钢板,以满足不同锥度比的路灯杆。导向小车带电机驱动,根据需要生产的路灯杆的长度, 可以自动移动到,所需要的位置,夹持钢板,以控制板料滚剪的直线度。
每一个趟排辊子带有离合器和动力,电机驱动辊子时,带动钢板向前移动,到斜剪机前固定位置时自动停止。大大降低操作人员的劳动强度。
小车和双剪机均带有气动定位装置,保证下料的一致性和降低人工。
12.板料升起装置
这个装置包含两个气缸,根据板料的长度,可以被设置到不同的位置。
当板料移动到斜剪机前面,停下来后,这个装置将板料升起,便于板料被夹紧在小车上,向前移动。
13.斜剪机,采用滚剪的原理,将双剪后的钢板斜剪,获得路灯杆板材的折弯前需要的斜度。
采用上下2斜剪辊和动力夹送辊,2把刀片的结构,上下2辊为螺纹,便于调节滚剪位置。
带电动机,齿轮箱。
14.出料趟排
适合客户所需长度的路灯杆板料,趟排由球支承,和支撑架所组成。
15.梯形板自动卸料和堆垛
在斜剪机之后,有两个气动夹紧送料辊,其作用是将梯形板送离斜剪机,下辊带气动离合器,带电机驱动。当板料停止移动时,上辊会升起给出卸料空间。
在出料趟排的下面有12组气动卸料装置,它们从台子的中间升起,形成两个斜面,使得两块梯形板分别滑向两边的堆垛架子。完成自动卸料和堆垛。
所有动作全部由PLC 程序来控制,自动完成。
16.电气控制系统
电气控制系统组成:电源控制操作台,可编程控制系统。包含变频器,用来控制小车的移动速度。
17.液压系统有液压站和相应的阀、管路、油缸组成
18.气动系统
用于小车,趟排的离合器,板料升起和落料系统。
19. 钢板纵剪机随机备件

四重式校平机



19. 钢板纵剪机随机备件
| No. | Item 名称 | Quantity 数量 | Remarks 备注 |
| 1 | Balde 刀片 | 2 | |
| 2 | Round ball for feeding 牛眼 | 30 | |
| 3 | 206 bearing seat 轴承座 | 6 | |
| 4 | bearing 轴承(NUP2307) | 4 | |
| small bearing 小轴承 | 5 | ||
| 5 | pneumatic pipe 气管直径8mm&10mm | 50m、20m | |
| 6 | fitting all kinds of 8mm和10mm接头, 各种接头 | 10 | |
| 7 | MAL32X25 Pnematic cylinder 气缸 | 3 | |
| 8 | Gear and chain 齿轮+链轮 | 3 | |
| 9 | chain wheel 链轮片 | 3 | |
| 10 | 3 toothed chain wheel 三齿链轮 | 3 | |
| 11 | Chain 链条 | 4.5m | |
| 12 | Complete joint and half joint for chain 链条全接头和半接头 | 10 | |
| 13 | Solenoid vavle 三联电磁阀 | 2 | |
| 14 | Limit switch 限位开关 | 8 | |
| 15 | Megnatic gauge seat 磁表座 | 6 | |
| 16 | feeler 塞尺 | 1 | |
| 17 | Seal belt 生料带 | 1 | |
| 18 | Cable fastener 扎带1把 | 1 |





苏ICP备17067978号-1